Casa singola in vendita a San Fior

In vendita
Casa singola
San Fior
290.000 €
Descrizione
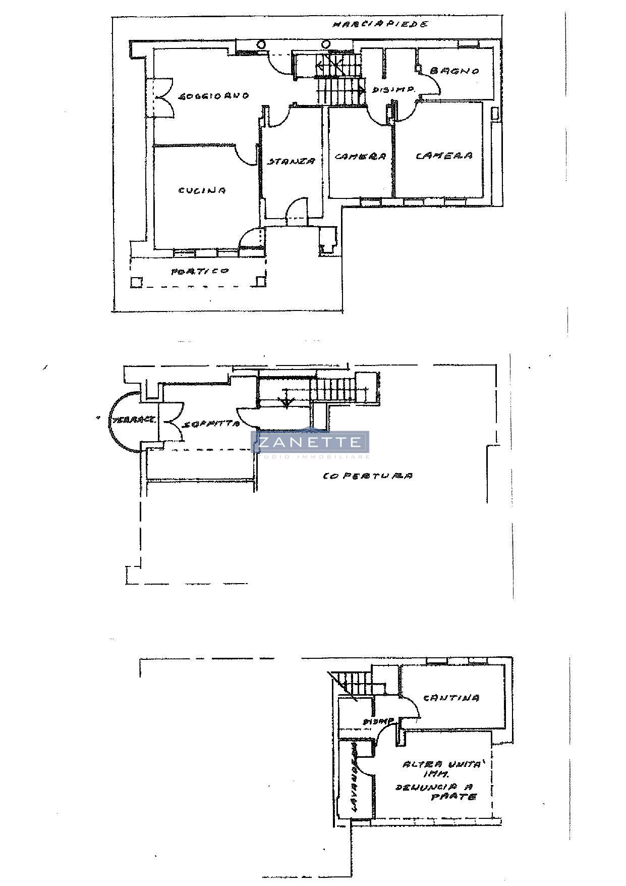
San Fior - Proponiamo graziosa villetta singola poco distante dal centro e comoda ai servizi. L'immobile si trova in ottime condizioni di manutenzione ed è così composto: ingresso in soggiorno, cucina abitabile separata, stanza multiuso; al piano 1° troviamo una camera matrimoniale, una cameretta, un bagno. Salendo troviamo una stanza mansardata con terrazzo, attualmente al grezzo con impianti predisposti. Al piano seminterrato vi è il garage, la lavanderia e una cantina. Area scoperta di 360 mq.
Caratteristiche principali
Codice:
V356PZ
Città:
San Fior
Categoria:
Casa singola
Locali:
5
Camere:
2
Bagni:
2
Mq:
116
Box:
1
Mq Box:
20
Mq Giardino:
360
Terrazzi:
1
mq Terrazzo:
4
Anno:
1993
Classe energetica:
E
220,64
Stato Immobile:
Buono
Grado:
Signorile
Orientamento:
Sud Ovest
Lati Liberi:
4
Giardino:
Privato
Arredi:
Possibilità
Tipo Soggiorno:
Soggiorno
Tipo Cucina:
Abitabile
Riscaldamento:
Autonomo
Tipo Riscaldam.:
Caldaia
Tipo Impianto:
Radiatori
Fonte Energetica:
Metano
Acqua Calda:
Autonoma
Raffrescamento:
Split
Infissi:
Legno Doppio Vetro
Serramenti:
Discreto
Persiana:
Oscurante Legno
Pavim. Giorno:
Ceramica
Pavim. Notte:
Parquet
Pavim. Cucina:
Ceramica
Pavim. Bagno:
Ceramica
Accesso Disabili:
No
Accessori
Antifurto
Aria Condizionata
Canna Fumaria
Cancello Elettrico
Distanze
Posizione
Centro500 m
Istruzione
Scuola materna1 km
Scuola elementare1 km
Scuola media1 km
Altri servizi
Banca400 m
Farmacia400 m
Supermercato400 m
Qr Code
Cookie preference