Porzione di Casa in vendita a Colle Umberto

In vendita
Porzione di Casa
Colle Umberto (San Martino di Colle Umberto)
250.000 €
Descrizione
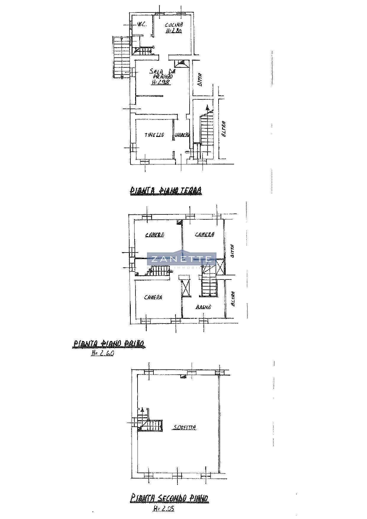
Loc. Campion - proponiamo ampia porzione di testa di casa di tipologia colonica, interamente ristrutturata negli anni 90. L'immobile è composto al piano terra da ingresso, salotto, ampia sala da pranzo con uscita sul giardino, cucina abitabile separata, bagno; al 1° piano troviamo 3 ampie camere e 1 bagno; al piano superiore una splendida mansarda travata a vista "open space". Inoltre è stato ricavato un piano interrato con garage e cantina/magazzino. Ampia area scoperta di 1.000 mq con possibilità di irrigazione. L'immobile è immerso nella tranquillità della campagna e nel contempo è vicino ai principali servizi (scuole, supermercato, farmacia, ecc).
Caratteristiche principali
Codice:
V352PZ
Città:
Colle Umberto (San Martino di Colle Umberto)
Categoria:
Porzione di Casa
Locali:
8
Camere:
3
Bagni:
2
Mq:
168
Box:
1
Mq Box:
28
Mq Giardino:
1000
Anno ristrutturazione:
1992
Classe energetica:
F
246,37
Stato Immobile:
Buono
Posizione:
Campagna
Panorama:
Vista Aperta
Orientamento:
Sud Ovest
Lati Liberi:
3
Giardino:
Privato
Arredi:
Possibilità
Tipo Soggiorno:
Sala da Pranzo
Tipo Cucina:
Abitabile
Riscaldamento:
Autonomo
Tipo Riscaldam.:
Caldaia
Tipo Impianto:
Radiatori
Fonte Energetica:
GPL
Acqua Calda:
Autonoma
Infissi:
Legno Doppio Vetro
Serramenti:
Buono
Persiana:
Oscurante Legno
Pavim. Giorno:
Ceramica
Pavim. Notte:
Parquet
Pavim. Cucina:
Ceramica
Pavim. Bagno:
Ceramica
Accesso Disabili:
No
Accessori
Camino
Canna Fumaria
Distanze
Istruzione
Scuola materna3 km
Scuola elementare4 km
Scuola media4 km
Mezzi di trasporto
Fermata metro-bus-tram1 km
Altri servizi
Banca3 km
Farmacia1 km
Qr Code
Cookie preference